КОТТЕДЖИ
ДЛЯ ПОКУПАТЕЛЕЙ
- Специальные программы
- Полезная информация
- Поиск по сайту
ПРОЕКТЫ КОТТЕДЖЕЙ
- Дом который построили Вы!
- Удача
- Орешник
- ТандеМ
- Гостевые дома
- Архив проектов

- Специальные программы
- Полезная информация
- Поиск по сайту
- Дом который построили Вы!
- Удача
- Орешник
- ТандеМ
- Гостевые дома
- Архив проектов

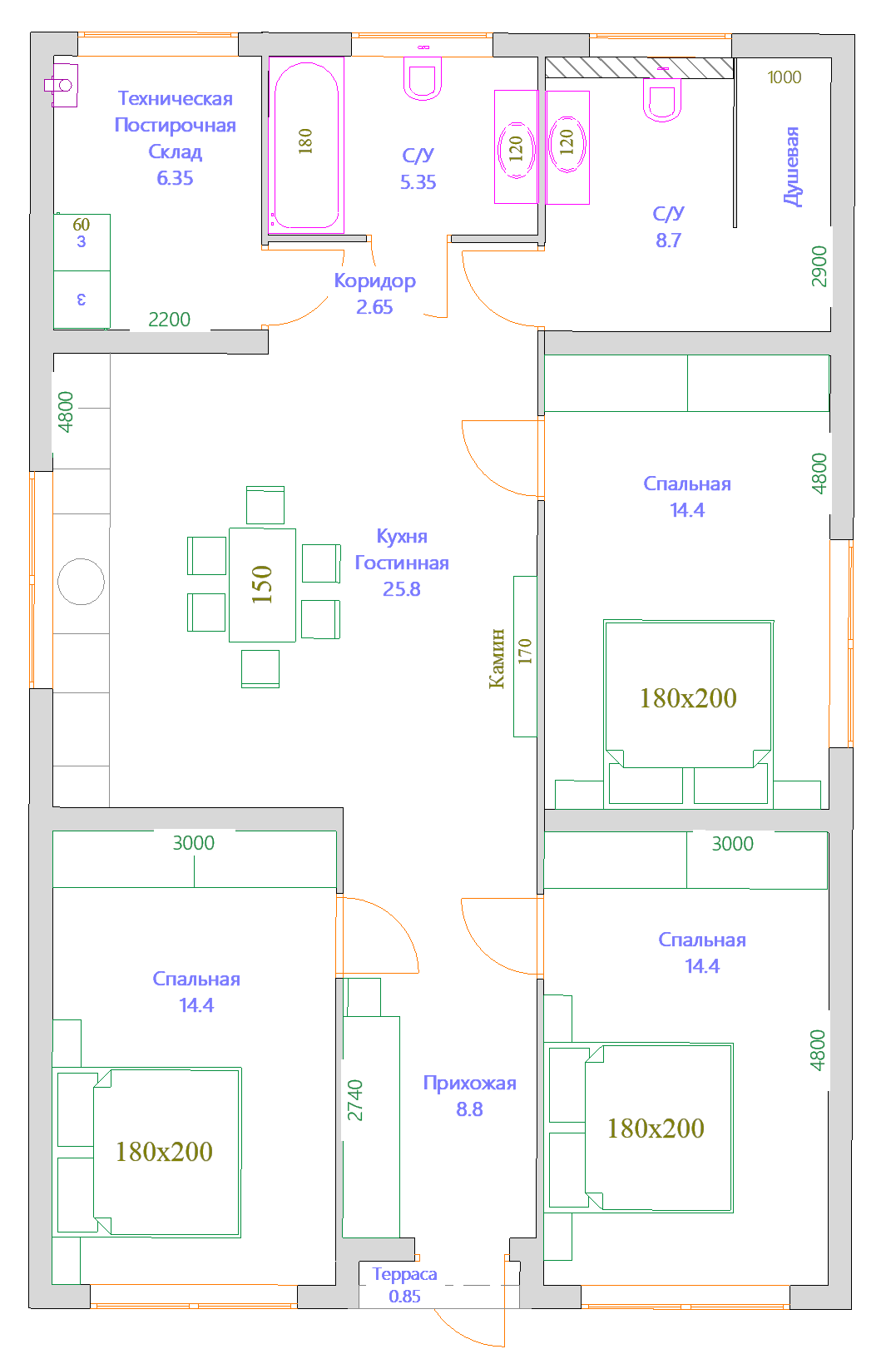
• "Удача-4" - самый продаваемый проект 2022, 2023, 2024 и 2025 годов. Идеальное соотношение цены и получаемых результатов. Несмотря на достаточно скромную стоимость, в коттедже: Три полноценные комнаты с идеальным соотношением длины и ширины, с возможностью комфортного размещения любой мебели; Два полноценных санузла в одном из которых душевая, во втором - ванна; Отличная кухня-гостиная с местом расположения кухонной мебели - вдоль окна; Самая практичная, четко вымеренная, техническая-постирочная-склад, где кроме котельного оборудования выделено место под стиральную и сушильную машины, место под стеллажи и второй холодильник.
• В 2025 году проект "Удача-4" был существенно модернизирован до проекта "Удача-4-4" в результате: Увеличена высота потолков до 2.9-2.95 метра; Все комнаты сделаны в золотом сечении (идеальное соотношение длины и ширины); Существенно увеличены все окна; В малом санузле добавлено окно; Оптимизировано размещение сантехники в санузлах; Внесена масса незначительных улучшений. И конечно - новый дизайн в котором внесено 54 изменения. Мы реализовали данный объект, вот ссылка, где вы можете посмотреть и фотографии и видеообзор.
• В конце 2025 года произведена модернизация проекта с "Удача-4.4" до проекта "Удача-4.5" основной задачей модернизации является изоляция санузлов от кухни-гостиной, что повлекло полное изменение санузлов. Также появился прямой (не через санузел) вход в техническое помещение. Незначительно увеличены окна, как в санузлах, так и в комнатах. Окно в техническом помещении теперь соответствует новой концепции: оно находится высоко и не мешает расположению под ним любой мебели и техники (включая стиральную и сушильную машины расположенные в колону). Внесена масса других незначительных изменений.
Строительство коттеджа по состоянию на 26 мая 2026 года:
• Завершен завоз основных материалов.
• Завершено строительство фундамента.
• Производится строительство заборов.
• Завершено строительство стен.
• Заказаны окна, двери.
• Доставлена канализация Топас-9
• Начало строительства крыши запланировано на 07.06.2026.
Строительство навеса под автомобили, по состоянию на 26 мая 2026 года:
• Выровнено место под строительство.
• Завезены основные материалы.
• Забетонированы несущие конструкции для навеса.
Внутренняя отделка по состоянию на 26 мая 2026 года:
• Начато строительство межкомнатных перегородок.
Благоустройство земельного участка по состоянию на 26 мая 2026 года:
• Завершен снос старых строений.
• Произведена зачистка и разметка участка.
• Завершен юридический раздел участка.
• Производится строительство заборов.
• Произведен завоз щебня для выравнивания передней части земельного участка.
• Производятся монолитные работы по формированию передней части забора.
1. Участок 6 соток, полностью огороженный глухим металлическим забором, с воротами и калиткой.
2. Коттедж проекта Удача-4.5 площадью 101 кв.м. без внутренней отделки (возможно проведение отделки, читайте ниже) с включенными дополнительными элементами по перечню размещенному ниже.
3. Все работающие коммуникации:
3.1. Газовое автономное отопление - везде теплые полы водяного типа с цифровым управлением температурой в каждом отдельно взятом помещении.
3.2. Электричество 15 киловатт 380 вольт.
3.3. Канализация - автономная Гринлос-5.
3.4. Вода - центральная, Московская удовлетворяющая требованиям САНПиН
По сути в стоимость входит земельный участок с жилым домом в котором надо произвести внутреннюю отделку и можно переезжать.
В данном коттедже возможно проведение полной внутренней отделки "под ключ". Фотографии отделок в избытке доступны фактически по любому коттеджу с внутренней отделкой. Стоимость полной внутренней отделки составляет 2.2 мл. руб.
Дополнительные элементы, которые можно реализовать в данном коттедже:
1. КОТТЕДЖ:
1.1. Информационная система для коттеджей RSG - ВКЛЮЧЕНО
1.2. Увеличение высоты потолков (в чистоте) с 2.65 до 2.9 метра - 120 000 руб. ВКЛЮЧЕНО
1.3. Автоматический привод ворот - 55 000 руб. ВОЗМОЖНО
1.4. Натуральный дровяной камин - 200 000 руб. ВОЗМОЖНО
1.5. Фронтальный камин в кухне-гостиной длинной 1.8 метра с формированием ниши под телевизор - 230 000 руб. ВОЗМОЖНО
1.6. Дополнительная шумоизоляция дома - 55 000 руб. ВОЗМОЖНО
1.7. Декоративные раскладки в окна - 60 000 руб. ВОЗМОЖНО
1.8. Атермальная тонировка окон в небесно-голубой цвет с небольшим эффектом односторонней прозрачности - 65 000 руб. ВОЗМОЖНО
1.9. Улучшенная входная металлическая дверь (до - 40 градусов) - 75 000 руб. НЕ ТРЕБУЕТСЯ
1.10. Лестница на чердак - 30 000 руб. ВОЗМОЖНО
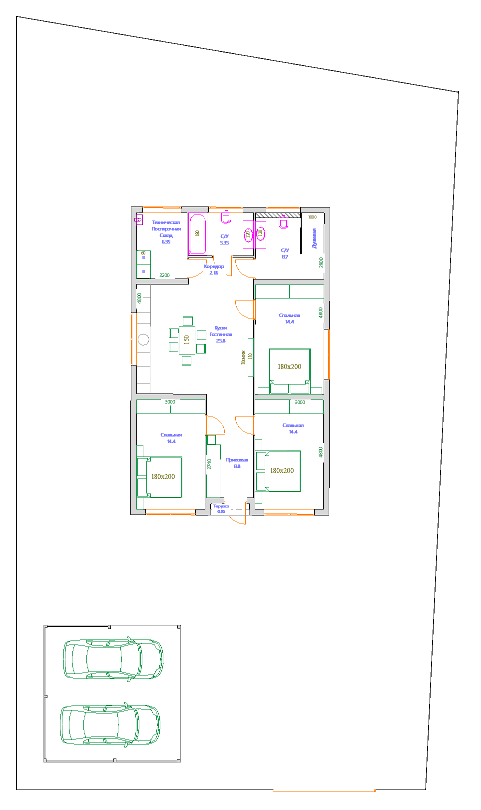
1.11. Навес под два автомобиля площадью 35 кв.м. (фото на данном объекте) - 750 000 рублей. ВКЛЮЧЕНО
1.12. Замена прямых коньков крыши на закругленные - 30 000 руб. ВОЗМОЖНО
1.13. Замена дагестанского камня 2-й категории (входит в стоимость) на 1-ю категорию - 45 000 руб. ВКЛЮЧЕНО
1.14. Установка "зубов улитки" по всему периметру дома - 35 000 руб. ВОЗМОЖНО
1.15. Замена межкомнатных перегородок с гипсокартона на металлических профилях, на пазогребневый гипсоблок - 35 000 руб. ВОЗМОЖНО
2. УЧАСТОК:
2.1. Бетонирование дорожек вокруг дома и стоянки - 100 000 руб. ВОЗМОЖНО
2.2. Перехватывающий лоток для воды поперек стоянки (перед домом) - 18 000 руб. НЕ ТЕБУЕТСЯ (уклон участка в другую сторону)
2.3. Бетонирование площадки для установки мангала - 15 000 руб. (цена приблизительная и зависит от размера и удалённости от дома). ВОЗМОЖНО
2.4. Перекапывание участка, выравнивание с учетом естественного ландшафта и посадка газона - 50 000 руб. ВОЗМОЖНО
2.5. Посадка садовых (не плодовых) деревьев. Зависит от количества, вида деревьев и сезона - от 50 000 рублей. НЕ СЕЗОН
2.6. Передняя часть забора на монолитном фундаменте, с монолитными столбами отделанными дагестанским камнем, светильниками на каждом столбе, проемы - евроштакетник - 200 000 руб. ВКЛЮЧЕНО
3. ИНЖЕНЕРИЯ:
3.1. Пакеты умного дома от RSG: Минимальный - 55 000 руб. Базовый - 100 000 руб. Максимальный - 160 000 руб. ВОЗМОЖНО
3.2. Подготовка под систему R-Климат 3 000 руб. за единицу - ВКЛЮЧЕНО (во все комнаты)
3.3. Система чистого воздуха R-Климат для первого помещения - 135 000 руб. и 110 000 для каждого последующего - ВОЗМОЖНО
3.4. Пакет ночной внутренней подсветки с интеграцией в умный дом от RSG - 50 000 руб. ВОЗМОЖНО
3.5. Интеграция автоматического привода ворот в умный дом от RSG - 10 000 руб. ВОЗМОЖНО
3.6. Инфракрасный подогрев любого окна с подключением к умному дому от RSG оснащенный температурным датчиком (цена за единицу) - 15 000 руб. ВОЗМОЖНО
3.7. Фоновые подсветки во всех комнатах, кухне-гостиной, с интеграцией в умный дом от RSG, включая монтаж скрытых карнизов для штор - 100 000 руб. ВОЗМОЖНО
3.8. Установка термостатов управления теплыми полами, для управления в автоматическом режиме. Во все помещения. Без подключения к умному дому. - 35 000 руб. ВКЛЮЧЕНО.
3.9. Подготовка под установку робота уборщика (выравнивание стыков полов помещений + Модуль подключения робота уборщика (отвод воды, канализации и розетка). Подробно о роботизированной уборке ЗДЕСЬ - 15 000 руб. ВОЗМОЖНО
3.10. Гигиенический душ возле унитаза (цена за единицу) - 8 000 руб. ВОЗМОЖНО
3.11. Водонагреватель для гигиенического душа (цена за единицу) - 13 000 руб. ВОЗМОЖНО.
3.12. Замена стандартного смесителя на ванной на термостатический - 10 000 руб. ВОЗМОЖНО
3.13. Замена термостатического смесителя в душевой на термостатическую душевую стойку - 18 000 руб. ВОЗМОЖНО
3.14. Замена стандартного смесителя на раковине на термостатический - 8 000 руб. за единицу. ВОЗМОЖНО
3.15. Подготовка под установку стиральной машины (вода, канализация, розетка) - 5 000 руб. ВОЗМОЖНО
3.16. Дополнительная вытяжка в техническое помещение диаметром 150 мм (для центральной газификации) - 15 000 руб. ВОЗМОЖНО
3.17. Отвод электричества под установку кондиционеров (во все комнаты) - 3 000 руб. цена за все. ВОЗМОЖНО
3.18. Подсветка фасада версии 2.0 с интеграцией в умный дом от RSG (до 12 светильников) - 85 000 руб. ВОЗМОЖНО
3.19. Две камеры видеонаблюдения оснащенные источником гарантийного питания и накопителями от 64GB с подключением к умному дому - 50 000 руб. ВОЗМОЖНО
3.20. Установка дополнительных розеток внутри дома: первая розетка - 10 000 руб. и последующие розетки - 3 000 руб. за единицу. Интеграция розетки в умный дом от RSG - 3000 руб. за единицу. ВОЗМОЖНО
3.21. Установка розеток на фасаде дома в герметичном корпусе - 10 000 руб. за единицу. Интеграция розетки в умный дом от RSG - 3000 руб. за единицу. ВОЗМОЖНО
3.22. Отвод воды на улицу (под полив или подключения кёрхера) - 15 000 руб. ВОЗМОЖНО
3.23. Умный унитаз - 55 000 руб. ВОЗМОЖНО
3.24. Система водоподготовки -120 000 руб. НЕ ТРЕБУЕТСЯ (вода - центральная, Московская и качественная).
3.25. Полотенцесушитель: электрический, энергосберегающий, с интеграцией в умный дом от RSG - 12 000 руб. (за единицу) ВОЗМОЖНО
3.26. Система бесключевого доступа в дом (по отпечатку пальца, лицу, NFS, паролю или ключом) 65 000 руб. ВОЗМОЖНО
3.27. Фоновая подсветка изголовья кровати с декоративным панно и двумя розетками 220 вольт и USB - 25 000 руб. ВОЗМОЖНО
3.28. Электрический умный карниз для штор (одинарный), с подключением к умному дому от RSG: длина до 3.5 метра - 20 000 руб, от 3.5 до 5 метров - 25 000 руб. ВОЗМОЖНО
3.29. Замена автономной канализации Гринлос-5 на Топас-9 - 95 000 руб. ВКЛЮЧЕНО
ИТОГО: включены дополнительные элементы на сумму 1 219 000 руб.
• Один из лучших участков в данной местности. Крайняя улица, спереди дома ни кого нет, там красивая лесополоса и забор огораживающий овраг. Очень тихое, спокойное место.
• Всего 7 км. от МКАД, проехать всегда можно без пробок. 10 минут и вы дома.
• Хорошее соотношение длины и ширины, для реализации данного проекта. Легко вмещается навес для двух авто или гараж.
• Вся инфраструктура "под рукой" смотрите карту.
• Автобус в 700 метрах (8 остановок до метро Бульвар Дмитрия Донского)
1. Гарантия:
• На все коттеджи предоставляется гарантия.
2. Сопровождение:
• Мы хотим сделать Вашу жизнь в коттедже, комфортной. В течение двух лет мы предоставляем любые консультации относительно жизни за МКАДом, от времени посадки картофеля до «где находится этот кран?» или «куда звонить в случае..?». Если этого окажется недостаточно, то наш специалист приедет и покажет «этот кран» или сам «позвонит, туда куда надо», картошку тоже можем посадить -) Основная задача сопровождения: исключить возможные страхи связанные с жизнью в собственном доме. Кроме этого все наши коттеджи комплектуются информационной системой для коттеджей RSG позволяющей получать ответы на большинство Ваших вопросов буквально в месте, где они могут возникнуть.
3. Семейная ипотека:
• Данный дом подходит под программу семейной ипотеки со ставкой 6% годовых. В случае использования данной программы, стоимость объекта возрастает за счет дополнительных затрат на оформление ипотеки. Если вы хотите использовать семейную ипотеку - пожалуйста сообщайте об этом заранее, для ипотеки, от нас, требуется специальный пакет документов, формирование которого занимает время. Оформление ипотеки полностью производит наш брокер, от Вас требуются только Ваши документы.
4. Обмен на квартиру:
• Возможны разные варианты обмена с доплатой в любую сторону. Обмен на квартиру может рассматриваться как запасной вариант, к примеру: если не успели самостоятельно продать свою квартиру - производится обмен, если успели - то продажа. Мы гарантируем честную цену на Вашу квартиру.
5. Аренда с возможностью выкупа:
• Вы можете взять данный коттедж в аренду по цене 150 000 рублей в месяц, с возможным снижением до 120 000 рублей в месяц. Платежи за аренду в размере 50% от уплаченной суммы идут в зачет стоимости коттеджа. В период действия договора аренды (11 месяцев), Вы можете выкупить данный объект.
Видео об ипотеке без первоначального взноса и аренде с правом выкупа:
6. Беспроцентная рассрочка на Ваших условиях:
• Объем и сроки согласовываются в каждом отдельном случае. От Вас должна исходить информация: 1. Какой суммы вам не хватает на оплату объекта. 2. В течение какого времени Вы ее оплатите. "Торги" по рассрочке не ведутся, ваши условия либо принимаются либо нет.
Затраты на содержание данного коттеджа составляют 9 917 рублей в месяц по тарифам на май 2026 года и состоят из:
1. Отопление – 70 000 в год или 5 833 рублей в месяц.
2. Водоснабжение - 500 рублей в месяц.
3. Взносы в ДНТ - 1 500 в месяц
4. Электричество - 1500 в месяц.
5. Обслуживание канализации один раз в год 7000 рублей - 584 рубля в месяц. (не сложно выполнить самостоятельно)
Приведенные затраты относятся к «средним» затратам, рассчитанными на основании опыта эксплуатации, фактические цифры могут отличаться, но не значительно.
Мы гарантируем соблюдение данных цифр при условии корректной эксплуатации и отсутствия длительного периода аномальных холодов.
<<-- Маршрут до дома (геолокация должна быть включена).
Вы можете перейти на карту яндекс (нажав на кнопку слева внизу. На картах можно задавать в поиске все что Вас интересует: библиотеки, школы, детские сады, магазины, остановки транспорта, прокладывать маршруты до этих точек, менять слои (схема, спутник, гибрид).
• Проекты наших коттеджей, планировочные, архитектурные решения; возможности трансформации и масштабирования; отличительные элементы зданий; варианты и технологии фасадной отделки; технические решения по инженерным сетям - зарегистрированы как объект интеллектуальной собственности и охраняются законом об авторских и смежных правах. Последствиями нарушения авторского права может явится: уничтожение объекта без какой бы то ни было компенсации.
• Принципы и технологии усовершенствования классического септика (системы канализации) улучшающие его характеристики зарегистрированы как объект интеллектуальной собственности, использование без согласование с автором запрещено.
• Торговая марка RSG является объектом интеллектуальной собственности, использование ее без согласование с автором запрещено.
Все патенты доступны по этой ССЫЛКЕ

